Hệ nhôm Reynaers Masterline 10

(đánh giá) 0 đã bán

Giá bán: /m

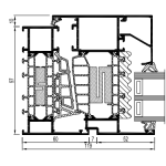
Cửa sổ nhôm MasterLine 10 phù hợp với xu hướng xây dựng của hiện tại và tương lai. Giải pháp được chứng nhận Nhà thụ động là lý tưởng cho tòa nhà sử dụng ít năng lượng, vì giải pháp này kết hợp khả năng tiếp cận ánh sáng ban ngày tối đa, hiệu suất tối ưu và an toàn mà không ảnh hưởng đến công năng sử dụng.

Thermal insulation
+ Medium:
Uf = 0.99 W/M2K
Air – Water – Wind
+ Medium:
Class 4 (600pa)/Class 9A(600Pa)/Class3(1600pa)
Acoustics:
Extreme
TuTi: 46(-1;-4) dB
Frame – Vent Width Open in
– Min 104mm